435-867-5647
318 N. Airport Rd
Cedar City, UT 84721

|  Bear Lake  |  Jackson  |  Jackson Hole  |  Park City  |  Rockport  |  Summit  |  Pine Hollow  |  Sashco Products  |

 

Rockport


View Plans

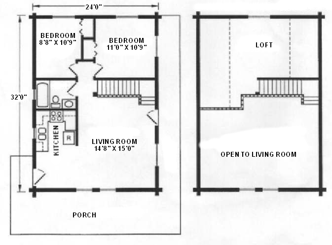
This cozy home is packed with great attributes. Floor to ceiling windows capture the warm rays of the winter sun. The loft, covered porch and deck are a few of the other attractions. Pull up a comfortable chair in front of the wood stove and enjoy cozy times with family members or friends.

 

Log and Timber Package (click for details)

7″ $43,149
8″ $46,247
9″ $52,661

Shell Package (click for details)

7″ $60,937
8″ $65,119
9″ $70,948

 

*Pricing subject to change without notice

Available Options (click for details)